Дизайнерский ремонт квартир "Под ключ" В Королёве, Москве и Московской области!
Рассчитать стоимость
Написать в Telegram
+7(499) 350-54-32
Пн-Пт: 08:30–18:00
Сб: с 09:00–15:00
Бесплатная консультация
Дизайн интерьера
Ремонт квартир
Портфолио
Отзывы
Контакты
Предыдущий проект
Следующий проект
Клиент:
Александр
Инфо:
ЖК "Новое Медведково"
.
.
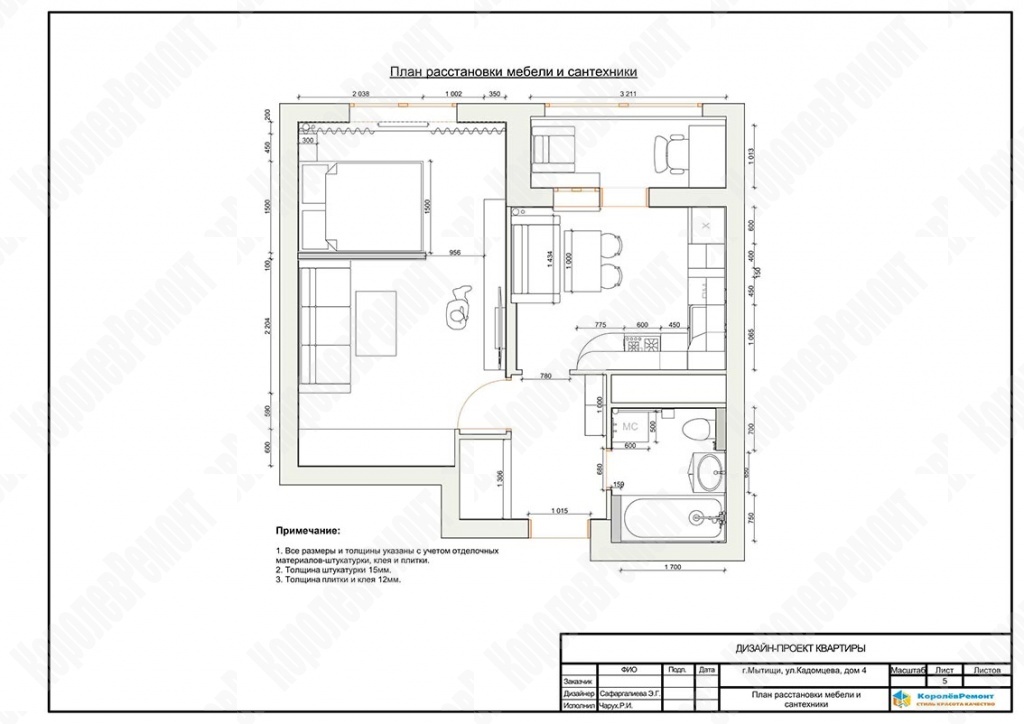
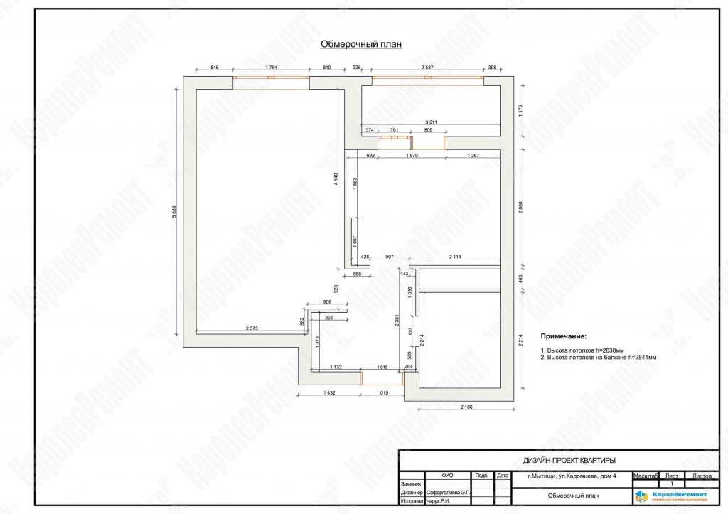
Площадь проекта:
42 м
2
Стоимость проекта:
60 000
Вернуться в раздел:
Заказать экспресс дизайн квартиры
Фотогалерея проекта